Thin But Elegant Modern House by Wallflower Architecture + Design
Sunny Side House is thin but elegant modern house designed by Wallflower Architecture + Design in Serangoon, Singapore.
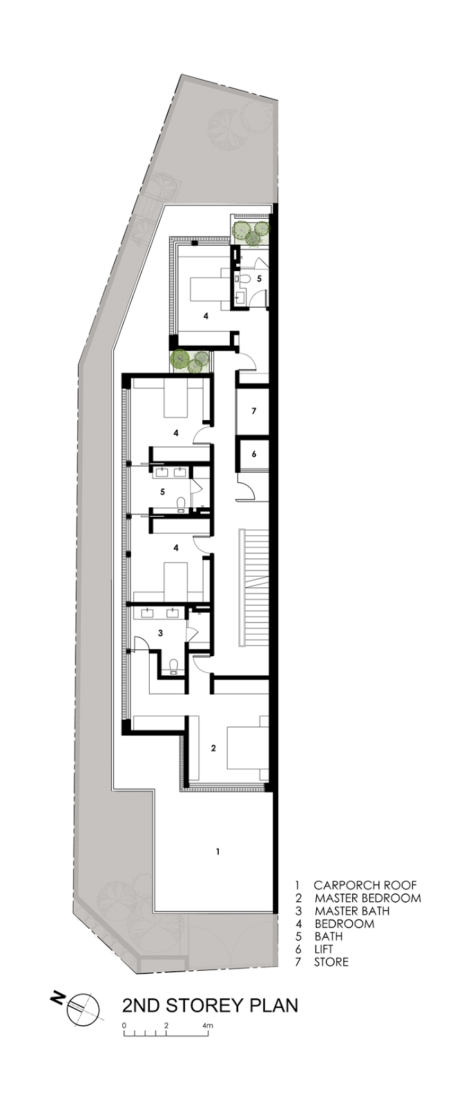
It is interesting home with extremely thin floor plan but designed and decorated to make life more than comfortable. It only shows how modern architecture today has no limits. High level of privacy is also more than obvious. The whole first floor is well hidden behind wooden planks giving it shade along with privacy.
All photos © Marc Tey
How do you like this thin and elegant modern house? Let us know in the comment section below.

























DOWNLOAD MINIMALIST HOME INDONESIAN DESIGNS AUTOCAD FILE FREE
ReplyDelete